编码: SS-0001 / 类型:
乡村自建房
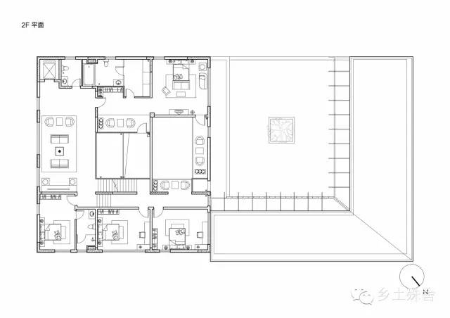
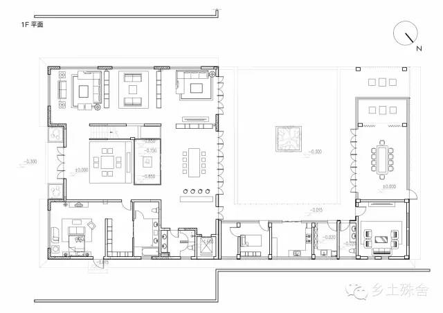
我们打造了一个房屋中庭,中庭不仅使得房子整体产生了自然的围合感,同时开放的空间与大山,与村子,甚至与整个大自然都有着交合。不仅如此,这个中庭绝不是简单的嵌入,您不妨先看着下图猜想一下,它的奥秘咱后面揭开。
概要
- 层数 : 3层
- 风格 : 现代风格
- 可建面积 : 120.0 ~ 480.0 m2
- 造价预估 : 18.0 ~ 50.0 万元
- 适用区域 : 全国
- 适用结构 : 砖混,框架,轻钢结构,钢结构皆可









- 深圳市中建苑建筑设计有限公司需要建房子的朋友可以联我们,微信电话同 号13686878605,QQ。2244643977。我们是设计之都--深圳专业设计团队。问问题也没有关系,我们会热心的去帮你解决一切问题,包括你在施工中有问题,我们都能帮你一一出方案去解决。让你明明白白建房子,你家我设计,做你的私人订制设计师。 给我们一个机会,还你一系列惊喜!!!