编码: SS-0002 / 类型:
乡村自建房
相信您不难发现这并不是一幢传统意义上的宅子,首先外形就看出来了呢。没错儿,下沉庭院,回凹露台都是由这块场地的特殊性决定的。这里是一个艺术大院,院内都是每户一亩的艺术家工作室。
概要
- 层数 : 3层
- 风格 : 传统风格
- 可建面积 : 380.0 ~ 900.0 m2
- 造价预估 : 30.0 ~ 56.0 万元
- 适用区域 : 全国
- 适用结构 : 砖混,框架,轻钢即可


在设计开始时,我们的设计师为了满足委托人的要求(房子需要有两种功能,一部分作为个人美术工作室,另外就是居住空间,两部分既需要联通,又想合理分隔,互不影响),也是开启了脑洞模式,通过下沉庭院和景观部分的设计,把展览和居住两个功能流线巧妙的分开。
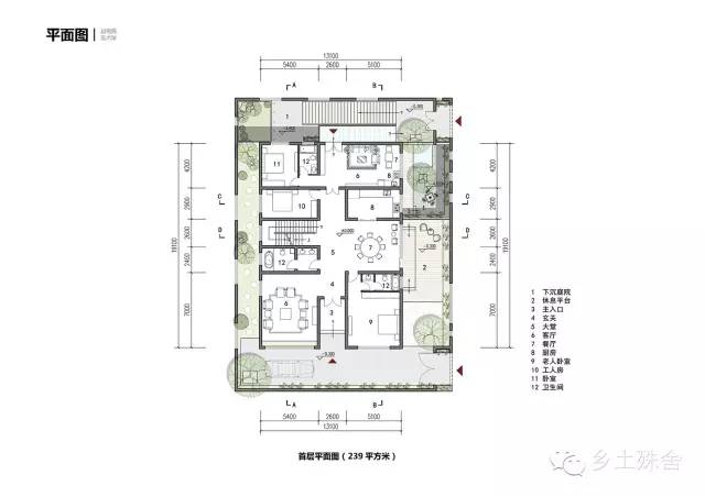
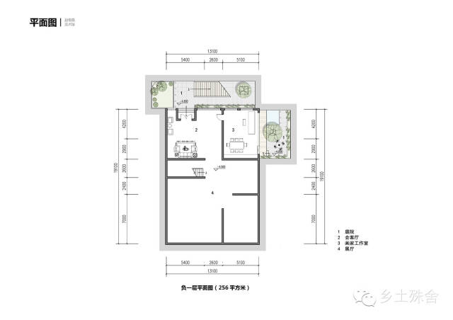
还有你们要的户型图,从地下一层到三层的图,满满的干货等您收。




地下一层和一层的北边是工作室的部分,二层三层是主要的居住部分,一层的南边呢就是别墅的客厅。两部分有各自的入口,互不影响,不过在一层也有联通两部分的通道。
在设计方案基本完成后,我们的设计师们可谓是怀着一颗忐忑的心与业主汇报,因为综合考虑各方面因素之后的外形并不像一座别墅。不过业主真不愧是要在宋家庄这座艺术大院建房子的人,读懂了它的气质,最后得到了双方都满意的结果,方案也没有做很大的改动,皆大欢喜。

