编码: ZJ-0114 / 类型:
乡村自建房
户型功能丰富,除了充足的卧室和厅之外,还有工作学习的书房和休闲健身的休闲厅这些辅助用房,使得生活更温馨幸福。虽然房间较多,但户型仍然不拥堵,南北通透,实为经典。外观上为现代欧式,经典的坡屋顶和灵动的门框和墙身勒线使得建筑形象大方高雅。
概要
- 层数 : 2层
- 风格 : 欧式风格
- 可建面积 : 260.0 ~ 520.0 m2
- 造价预估 : 30.0 ~ 60.0 万元
- 适用区域 : 适用于全国
- 适用结构 : 砖混, 框架, 轻钢
1、主效果图

2、立面图




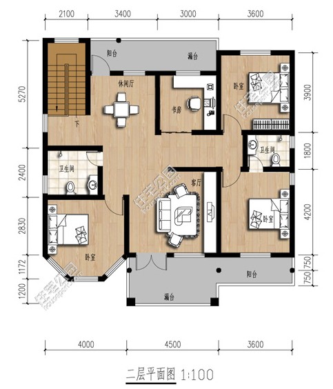
3、平面布局图


- 孔敏房型不错,是不是得专门配个院子才好?
- 吕良装饰要有大院子和周边景观设计
- 而立之年的幸福在西侧单独挎一个一层车库更完美
- ……户型不算是什么经典,我做房地产20年了,发现你们设计的图虽然有些地方是可圈可点,但还是有许多不足之处啊
- 龙云配个院子,设计一个车库,北向阳台应放置在东南方。
- 由金龙这么大的房子,成本可以控制在60万以内啊
- 鸿盛低能耗房屋『姚树财』意玛科技-为客户提供建筑工程咨询、规化、设计、施工、装修、维护等一体化服务。 让客户省钱、省心、省力、省时`、交钥匙工程。私人订制、宜居美宅、 成人达己、明明白白建房子! 选址: 土地、林地、宅基地流转买卖、易学风水堪舆。 设计: 自建房、庭院楼阁、别墅私宅、装饰装修。 施工: 框架、剪力墙、轻钢结构建筑,钢结构工程。 建材: 贝壳粉、EPS空腔模块生产销售。 服务: 分布式新能源应用,建筑智能化工程。 机械: 集装箱式沥青拌合站、混凝土机械等建筑工程机械销售、租赁、维修、一站式服务。 请告诉我们您的需求,我们将推荐适合您的施工方案! 电话/微信:13943476655
- 请叫我吴先生这个可以在加半层不?
- 韩海洋这套房子可以加个地下室吗?稍微改一下不就行了吗?家庭要和睦啊,要改的话可以找我,我就是干这个的啦。
- 韩海洋这套房子可以加个地下室吗?稍微改一下不就行了吗?家庭要和睦啊,要改的话可以找我,我就是干这个的啦。
- 吉祥夜这套房子外观完胜!可以选择加个地下层,上面内部格局改下,不就完美了???
- 拉脱维亚农村完全没必要盖地下室.都是向上盖
- Valentina农村盖地下室要有良好的排水系统!我感觉农村现在还达不到这么好的排水系统!盖地下室等到下大雨时车库就是储水罐!
- 如伟我喜欢这个,30多万包含装修了吗
- 如伟我喜欢这个,30多万包含装修了吗
- 如伟我喜欢这个,30多万包含装修了吗
- 王淑涛-中通这个大概多少钱
- 小云是毛坯房吗?
- 小云是毛坯房吗?
- 小云是毛坯房吗?
- 小云是毛坯房吗?
- 小云是毛坯房吗?
- A 华恒制冷工程13728228858框架2层多少钱?河南周口
- 小胡你好,这个你们能给做模型吗?