编码: ZJ-0171 / 类型:
乡村自建房
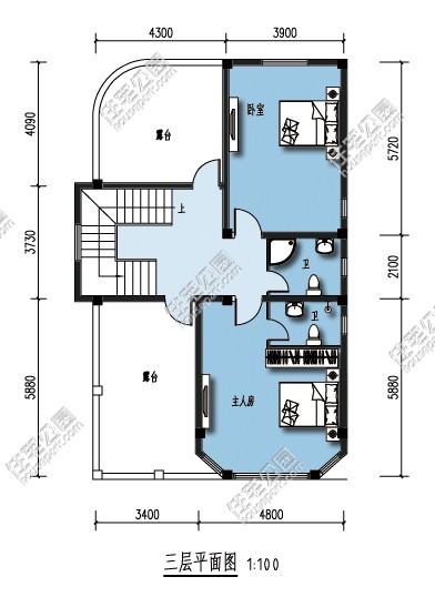
该户型地基东西长9米,南北宽14米,占地面积126平方米,建筑高度11.7m,建筑面积292平方米。共设5室6厅5卫1厨1阳台2露台
概要
- 层数 : 3层
- 风格 : 现代风格
- 可建面积 : 292.0 ~ 601.0 m2
- 造价预估 : 25.0 ~ 50.0 万元
- 适用区域 : 全国各地
- 适用结构 : 砖混、框架、轻钢、实木等
1、效果图

2、平面图



3、立面图



