编码: ZJ-9001 / 类型:
乡村自建房
该户型定位主要以实用为主没有复杂的装饰占地面积只有150㎡,建筑面积279.7㎡, 该户型整体紧凑但所有卧室开间均为4m*4m紧凑但不失舒适感户型紧凑功能齐全。
概要
- 层数 : 3层
- 风格 : 现代风格
- 可建面积 : 150.0 ~ 360.0 m2
- 造价预估 : 32.0 ~ 60.0 万元
- 适用区域 : 全国通用
- 适用结构 : 轻钢、框架、砖混、木塑皆可
1、主效果图,是不是很豪?

2、户型布局图

一层布置车库客厅厨房餐厅卫生间,卧室通过平台可通向院子。


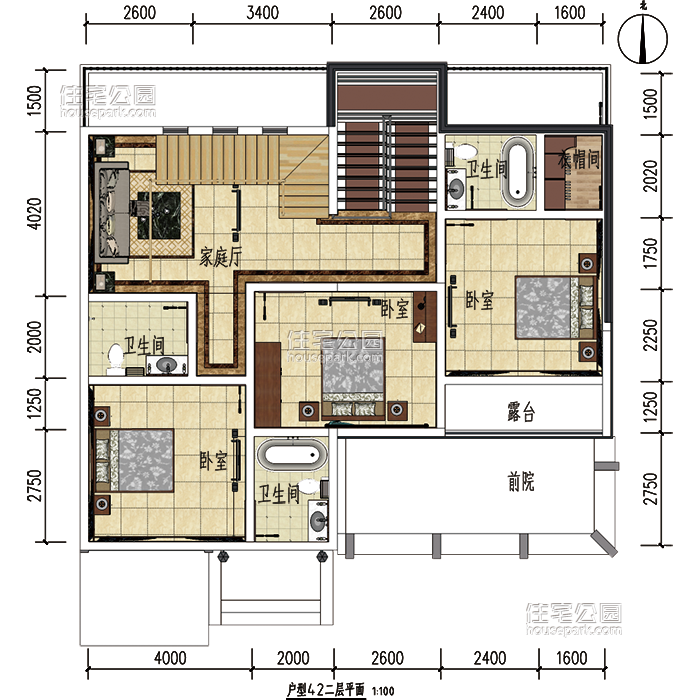
二层由三个卧室和一个家庭厅(起居室)组成。其中两个卧室有自己的独立卫生间另有一卧室有自己的阳台,家庭厅和三层主卧为挑空层使得不大的厅净空高度将近六米这样就不会有压抑感。
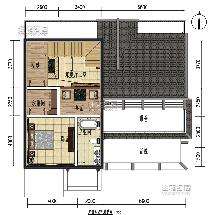
三层主卧进门处有独立衣帽间和自己的卫生间,顺着茶室出去就是一个两米六乘六米五的大露台。
3、立面效果图



