编码: ZJ-9002 / 类型:
乡村自建房
户型雅致,高低错落,尽显主人的内涵与修为。该户型功能齐备、布局合理,匹配得上一大家子的其乐融融。
概要
- 层数 : 3层
- 风格 : 现代风格
- 可建面积 : 240.0 ~ 450.0 m2
- 造价预估 : 38.0 ~ 60.0 万元
- 适用区域 : 全国适用
- 适用结构 : 砖混、轻钢、框架、木塑。
1、主效果图

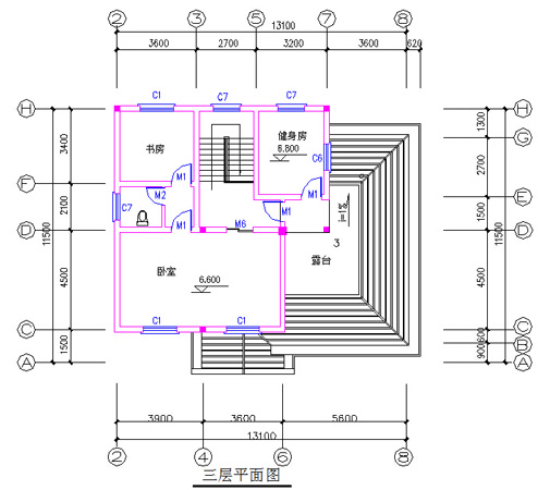
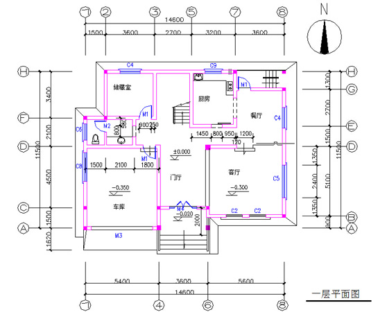
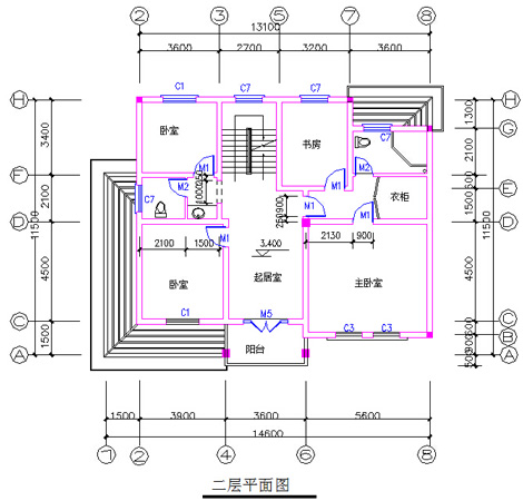
2、平面工程图



3、立面图


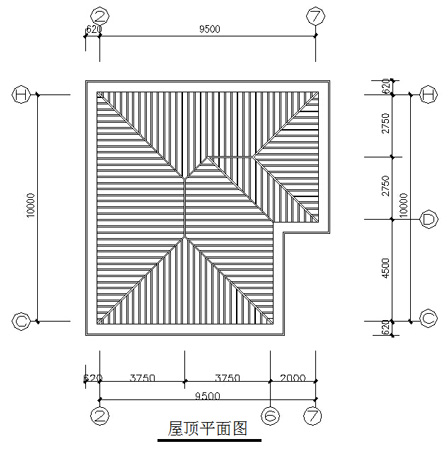
4、屋顶图

该户型实用大方,高端又不张扬。有需要的客户赶紧下单定制哦。
【另】农村自建房或别墅建设,可采用先进的EPS模块建房,详细信息可点击 海容建筑模块 了解更多。